Superior Freight Elevators: Efficient, Reliable, and Robust Solutions for Heavy Lifting
Freight elevators are designed for transporting very heavy cargo and materials such as cars or goods up and down in a building. Compared to passenger elevators, freight lift travel at slower speeds, can carry much heavier loads and is designed to withstand tougher working conditions. It’s more important for freight elevators to be practical rather than attractive. This can include steel wall panels, a heavy steel floor and a reinforced gate. A freight elevator will usually include vertically opening doors. Older models might even have manually operated wooden gates.
The service elevators are designed to facilitate the movement of personnel and the transportation of goods without disturbing guests or visitors in the building. In the plant in particular, the transport of major materials and equipment without interruption is an absolute necessity.
Regardless of the type of elevator you require, it’s important to ensure you are adhering to building codes and standards. We are pleased to assist you in exploring your elevator options and ensuring that you comply with the code. Contact us today to get started!
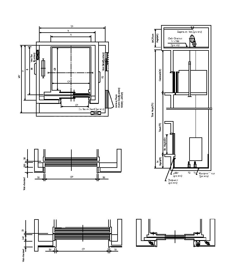
Specifications
- The operating system is designed with microprocessor programming, enhancing safety and reliability, and providing flexible responses to various usage conditions in factories. It is convenient for transporting goods and materials to support production lines.
-
The door drive control system uses voltage-frequency variable (VVVF) technology for medium and small-sized doors, and DC drives for large-sized doors, increasing the system's power and durability.
-
Motor control: uses stepless speed control through a variable voltage and frequency (VVVF) system, saving energy and ensuring precise floor stops, facilitating easy transport in combination with forklifts.

